Hus til en Mormor

Fakta om projektet

  • Ombygning
  • Tilbygning
  • Bedre indeklima og boligkvalitet
  • Fællesskabsorienterede løsninger
  • Fleksibel bolig

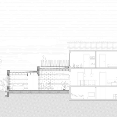
I en have på Amager i København flytter en mormor ind. Ved at udnytte en mulig udbygning af datterens villa, kunne parcelhuset I Odense byttes til en 50 m2 tilbygning.

 

Projektet lægger sig til den eksisterende villa som en serie af rum, der kroger sig ud i haven. Det nye og det gamle flettes sammen og får tilføjet hjørner og nicher, der gør huset til en robust ramme for hverdagen. Flere generationer, der kan bo sammen, gammel og ung, hverdag og fest, fællesskab samt et sted, hvor man kan trække sig tilbage.

 

Huset står som en undersøgelse af vores nuværende ordinære og almene byggeskik: Tegl, gasbeton og hulmur. Fyldt med begrænsninger og fejl, men også potentialer. Ved at forstå, hvordan et hus er bygget, opdages alle de lag, der udgør vores arkitektur. Mange lag er i projektet blevet fjernet for at fejre de elementer, der er nødvendige.

 

Den tilføjede arkitektur er klart anderledes end det eksisterende, men ønsker ikke at se ny ud. Murværket samles med tykke grove fuger, der gør fugen vigtigere end den enkelte sten.

 

Efter tilbygningen står et samlet hus, hvor mange forskellige liv nu kan udfolde sig. Som generationshus, flerfamiliehus, kollektiv osv. Der er ikke én rigtig sammensætning og huset definerer ikke en bestemt måde at leve på.

Afslutningsår

2022

Arkitektens navn

Philip Lütken

Deltagerens navn

A Part of Sum