Kom! Lad os bo på mindre plads... Arkitektens eget hjem

Fakta om projektet

  • Renovering
  • Ombygning
  • Pladsoptimerende løsninger
  • Fleksibel bolig
  • Bo småt

Vores tilgang har været præget af respekt for det eksisterende og en ambition om at skabe plads til en moderne families liv – uden at gå på kompromis med husets sjæl og samtidig kunne bo på mindre plads.

 

Ombygningen af boligen har derfor været en nænsom og langsigtet proces, med ønsket om at forstå og respektere husets kvaliteter, før der påbegyndtes større ændringer.

 

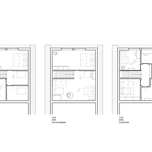
Huset er oprindeligt opført til en mindre familie, men som familie på 5 har vi med omtanke og kreativitet tilpasset det til vores behov.

Førstesalen er blevet optimeret med fire værelser og små hemse, som både giver opbevaringsplads og mulighed for overnattende gæster.

 

Nyt ovenlysvindue giver nu opgangen et smukt, naturligt lysindfald og skaber en lethed i rummet.

 

Stueetagen har vi bevaret næsten uændret, da både køkkenet og den åbne rumfordeling stadig fungerer godt. Vi har tilføjet et nyt vindue i gavlen, som inviterer dagslyset ind og giver kig til haven mod syd.

 

Badeværelset fremstår originalt med fliser, badekar og vask fra 1970’erne, mens bryggerset venter på at blive moderniseret, når fjernvarmen er lagt ind. Her er planen at vælge materialer, der harmonerer med husets oprindelige stil fra 1970’erne.

Juryens vurdering

Arkitekten har forvandlet familiens hjem til et sted, hvor hver m² tæller – og hvor plads, materialer og funktion er valgt med omtanke – også for muligheder på lang sigt. Projektet her er et ærligt og varmt bud på, hvordan fleksibilitet i boligen ikke nødvendigvis kræver avancerede ombygninger eller tilbygning. Gennem stringent indretning, genbrug og forståelse for funktionelle behov demonstrerer projektet, hvordan små m² kan udnyttes med stor effekt. Her er der kun 20 m² boligareal per person, men stadig plads til leg og fleksibel brug af rummene.

Det er kort sagt en bolig, der balancerer det originale med det nødvendige og viser, at god arkitektur ikke handler om størrelse, men om at bruge pladsen klogt. Det er en vedkommende og inspirerende fortælling, der uden tvivl vil kunne inspirere mange til at bo mindre, dele mere og give sig god tid, før man begynder at bygge (for meget) om.

Afslutningsår

2024

Arkitektens navn

Rikke Feder

Deltagerens navn

Rikke Feder