Ombygning af murermestervilla gav mere plads og lys

Fakta om projektet

  • Renovering
  • Ombygning
  • Tilbygning
  • Transformation
  • Energibesparende løsninger

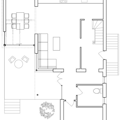
Familien der havde købt en villa ud mod Damhussøen ønskede at ombygge og modernisere den, så den passede til deres ønsker og behov. Huset havde en fantastisk placering ud mod Damhussøen, men i opholdsrummene oplevede man ikke rigtig udsigten mod søen og naturen. Derfor fokuserede vi på, at inddrage udsigten mod søen og naturen mest muligt uden at lave for store ændringer i husets arkitektur. I forlængelse af stuen var der i 1970érne opført en uisoleret udestue. Udestuen blev ombygget og efterisoleret og med en ny stor åbning blev den inddraget som en del af stuen. Derudover blev husets oprindelige planløsning transformeret med nye zoner, nyt køkken og et nyt langt kig gennem huset mod søen.

Afslutningsår

2023

Arkitektens navn

Arkitektfællesskabet - Anders Aalekjær Grønbech

Deltagerens navn

Arkitektfællesskabet