Respektfuld renovering og udvidelse af 60’er parcelhus

Fakta om projektet

  • Renovering
  • Ombygning
  • Tilbygning
  • Genbrugsmaterialer
  • Biogene materialer
  • Energibesparende løsninger
  • Bedre indeklima og boligkvalitet
  • Pladsoptimerende løsninger

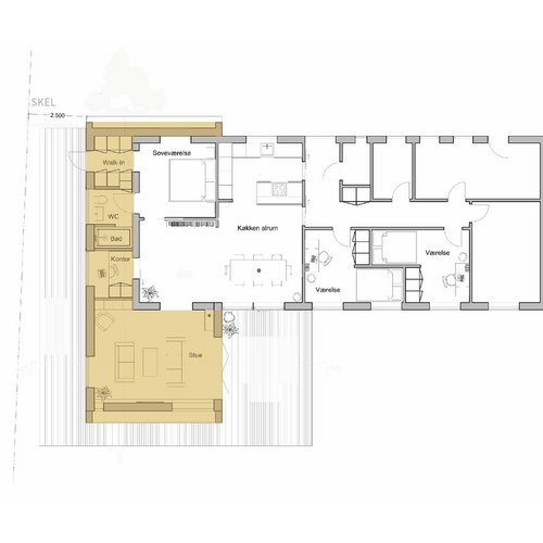
Et klassisk, arkitekttegnet parcelhus fra 1969 er totalrenoveret og udvidet med en tilbygning, der blev langt mindre end det familien oprindeligt forestillede sig. Der blev skabt en skræddersyet tilbygning, der omfavner gavlen på husets præmisser, så der dannes en vinkel, der både definerer udvidelsen mod vejsiden, og skaber en solkrog mod haven.

I projektet har det været intentionen at bevare så meget som muligt og tilpasse sig den eksisterende arkitektur. Vinduer er genanvendt på nye placeringer, teglsten er opkøbt som restparti, og generelt set er de eksisterende rammer i høj grad respekteret.

Den gule tegl er stadig toneangivende samtidig med, at der er skabt en nyfortolkning af det tidstypiske fyldparti og gjort en dyd ud af at fremhæve det. Mod vejen markerer fyldpartiet, at huset er udvidet, og mod haven udgør det en særlig træbeklædt niche, hvor den tilbagetrukne facade agerer sålbænk.

Det eksisterende hus er energimæssigt opgraderet med efterisolering, gulvvarme samt nyt tegltag. Dagslysforholdene er forbedret med bl.a. ovenlys i opholdsrummet. Den oprindelige planløsning med små opholdsrum er åbnet op, og der er skabt mere tidssvarende og fleksible rammer for en moderne familie. Renoveringen og den optimerede planløsning har resulteret i stor merværdi

 

Afslutningsår

2022

Arkitektens navn

Nordpil

Deltagerens navn

Nordpil